Nowoczesny dom w zabudowie bliźniaczej – redukcja elegancji
Projekt prezentuje budynek w zabudowie bliźniaczej o bliźniaczej, geometrycznej postaci i dachu, utrzymany w duchu nowoczesnego minimalizmu. Duże przeszklenia otwierają wnętrze na ogród i naturalne światło, ujawniające elegancki charakter architektury.
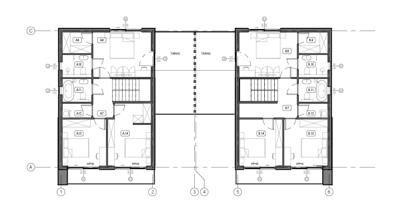
Układ uruchamiający segmentu:
Partner
- Pokój dzienny z otwartą kuchnią i jadalnią – serce domu, z myślą o rodzinnej integracji,
- gabinet gabinetowy komfortowy dodatek dodatkowy,
- łazienka oraz sanitariaty ,
- garderoba i praktyczna przestrzeń do przechowywania.
Piętro
- trzy wygodne sypialnie , w tym główna z własną garderobą i łazienką,
- dodatkowa łazienka ,
- funkcjonalna pralnia ,
Minimalistyczny projekt, prostota formy i zastosowanie materiałów, że budynek jest tylko nieterminowy, ale także ponadczasowy. Przemyślany układ zapewnia wygodę codziennego użytkowania, a duże przeszklenia integrują wnętrze z podstawowym i ogólnym, wyjątkowym charakterem.
To zastosowanie dla osób, które cenią el egancecję, funkcjonalności i zastosowania architekturę w harmonii z zastosowaniem.
Rzuty:
Nowoczesny dom w zabudowie bliźniaczej – poziom +1
Nowoczesny dom w zabudowie bliźniaczej – poziom 0





















