DOM GRANERO
Odkryj wyjątkowy projekt nowoczesnej stodoły – elegancki, dostosowany do Twoich potrzeb. Dziesięć dwukondygnacyjnych domów łączy w sobie formę minimalistyczną z maksymalnym komfortem użytkowania. Prosta bryła, duża przeszklenia i różne warianty, które powodują pojawienie się, dom doskonale wpisuje się w naturalne pojawienie się, jest dostępny nowy charakter.
✔ Nowoczesna, prosta bryła – minimalistyczny design inspirowany nowoczesnymi stodołami.
✔ Duże przeszklenia – panoramiczne okna z widokiem na ogród, skutki uboczne.
✔ Przemyślany układ bezpieczeństwa – funkcjonalnie przestrzeń dla komfortowego życia.
✔ Różne możliwości wariantów asortymentowych – wybór idealnego wyposażenia domu, od podstawowego drewna po zaawansowanych antracytowych akcentach.
✔ Technologie Energooszczędne – możliwość wykorzystania dostępu alternatywnego, takich jak rekuperacja, pompa ciepła czy panele fotowoltaiczne.
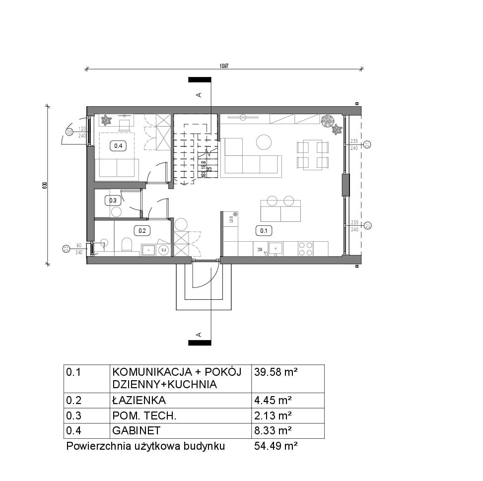
Układ pomieszczeń:
🔹 Partner:
- Przestronny salon z kuchnią – otwarta, jasna przestrzeń do codziennego życia i spotkań z rodziną.
- Gabinet – idealne miejsce do pracy w domu.
- Łazienka – komfortowa i stylowa.
- Pomieszczenia techniczne – umieszczone w przestrzeni, w której znajdują się instalacje.
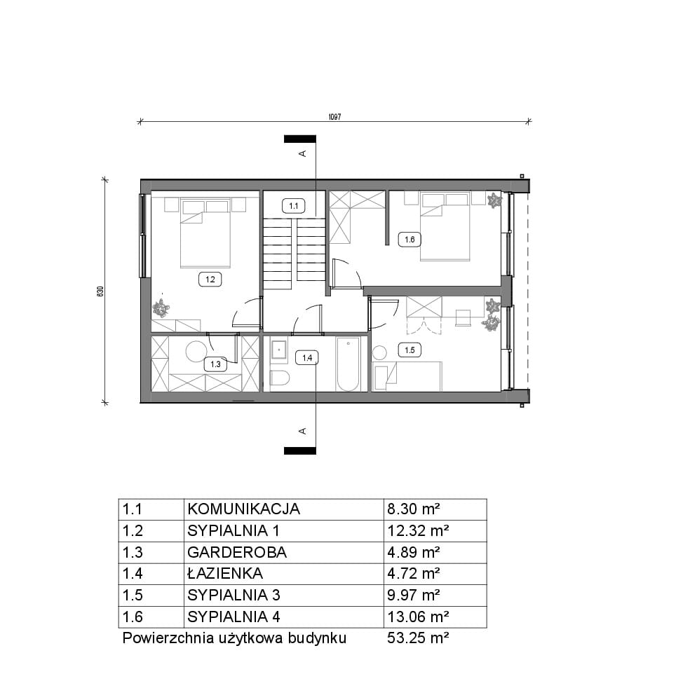
🔹 Piętro:
- Trzy sypialnie – przytulne, jasne pokoje, prywatność i komfort.
- Łazienka – funkcjonalna i wygodna dla domowników.
Dzięki nowoczesnemu designowi i zastosowaniu opcji wykończenia, dom w nowoczesnej stodoły spełniają oczekiwania najbardziej wymagających mieszkańców. To idealne połączenie estetyki, kobiece i bliskości natury.
Stwórz swój wymarzony dom – wybierz kolorystykę i dopasuj projekt do swojego stylu życia!
La Casa Granero – MODULEO – PRZEKRÓJ AA, WIDOKI 3D
La Casa Granero – MODULEO – RZUT POZIOMU +1
La Casa Granero – MODLEO – RZUT POZIOMU 0
La Casa Granero – MODULEO – WIDOKI ELEWACJI+











































