Opis projektu domu w stylu skandynawskim
Mały, funkcjonalny i funkcjonalny – idealny dom dla Ciebie!
Przedstawiamy indywidualny projekt domu w stylu skandynawskim, który łączy nowoczesny projekt z funkcją, wykończenie. To doskonała propozycja dla osób ceniących minimalizm, funkcjonalność i harmonię z naturą.
✔ Kompaktowy i ergonomiczny układ – idealnie zaplanowana przestrzeń, która maksymalnie wykorzystuje każdy metr kwadratowy.
✔ Styl skandynawski – jasne wnętrze, proste formy i naturalne materiały, przyjazna atmosfera.
✔ Drewniane wykończenie – elewacja z domu, która wyróżnia się ekologicznym charakterem domu i nadaje się do założenia.
To projekt, który łączy funkcjonalność z estetyką, dodatkowe warunki życia dla singli, par, jak i małych rodzin.
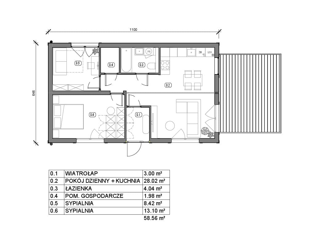
🔹 Powierzchnia: 58,56 m2
🔹 Liczba pokoi: 3
Zainspiruj się skandynawskim stylem i stwórz swój wymarzony dom!
La Casa Elegante – SMART-WIDOKI ELEWACJI
La Casa Elegante – SMART-POZIOM 0
La Casa Elegante – SMART-PRZEKRÓJ

































